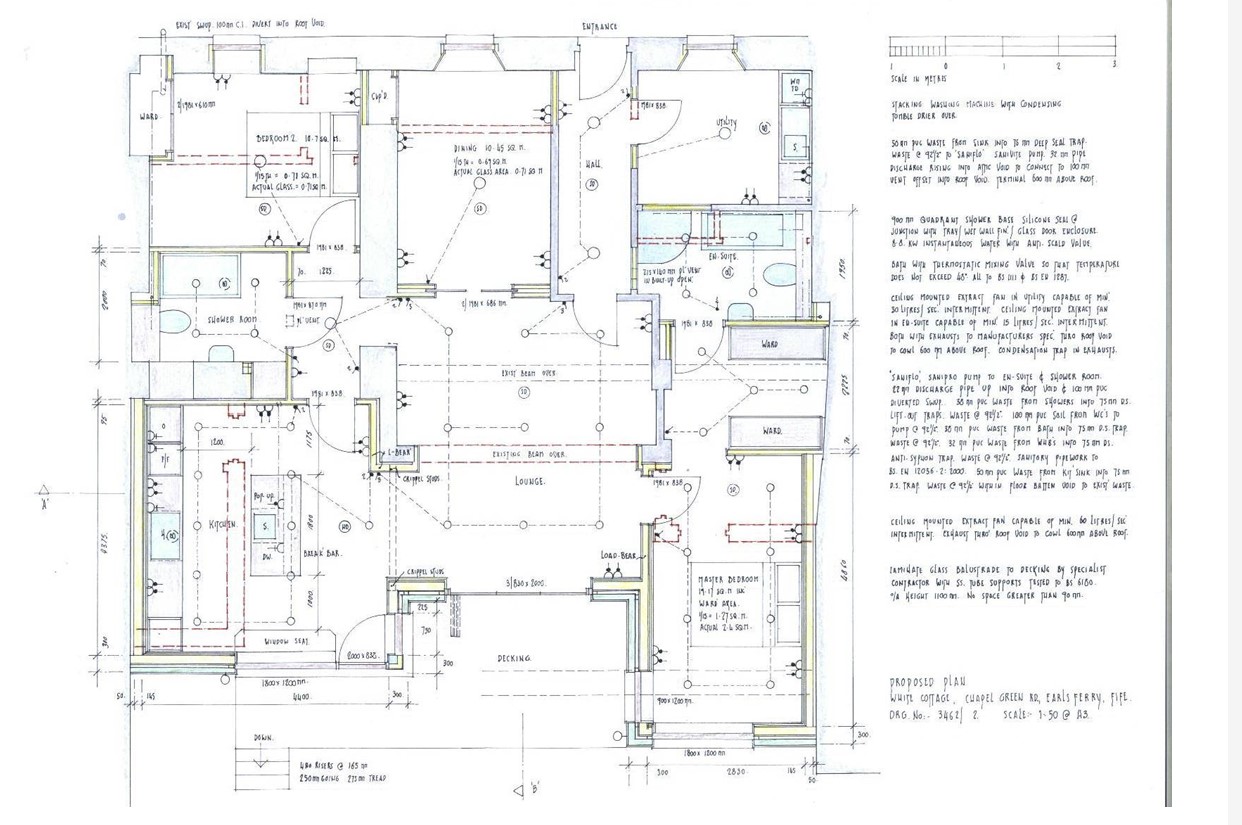
The White Cottage, Earlsferry

Extensive Renovation & Rear Extension

The White Cottage in Earlsferry is a beautiful example of how thoughtful design and careful craftsmanship can enhance a traditional home while respecting its original character.

J&T Joiners were appointed as Main Contractor, taking responsibility for the project from initial planning through to final completion. Working closely with the client, we delivered a full renovation alongside the construction of a single-storey rear extension, transforming the cottage into a more spacious, functional, and modern family home.

The new rear extension seamlessly integrates with the existing property, providing additional living space while maintaining the charm and character of the original cottage. Throughout the project, careful attention was given to detail, quality of finishes, and efficient project management to ensure a smooth build process from start to finish.

The completed renovation has significantly improved both the layout and usability of the home, creating bright, welcoming spaces that suit modern living while retaining the cottage’s unique appeal.

The client was delighted with their finished cottage, and the success of the project was further recognised when it was featured in The Courier newspaper.

See the property advertisement at Savills.

Client Testimonial

“J&T Joiners of Leven, Fife were the main contractors on our renovation and extension project, and they were fantastic from start to finish. The workmanship was of a very high standard, and they fully coordinated all other trades throughout the build. Everything was well managed and ran smoothly, and we were absolutely delighted with their performance and the finished result.”

Ian & Angela Jeen, Earlsferry

© J&T Joiners Limited. All rights reserved.